Level regulator for tank insert – IN

Dear visitors

On this page you will find our data sheets of the Level regulators for tank installation with different functions and connections.

IN-GB-100

NR 1/2″-3/4″-M20-M24

Level regulator for tank insert

IN-GB-100A

NR 1/2″-3/4″-M20

Level regulator for tank insert

IN-GB-100B

NR 25-50

Level regulator for tank insert

IN-GB-100E

NR 1/2″A-3/4″A-M20A

Level temperature regulator for tank insert

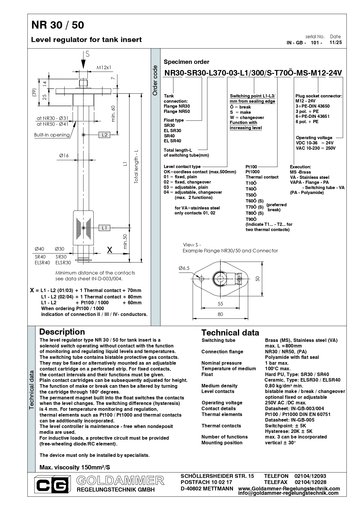
IN-GB-101

NR 30 / 50

Level regulator for tank insert

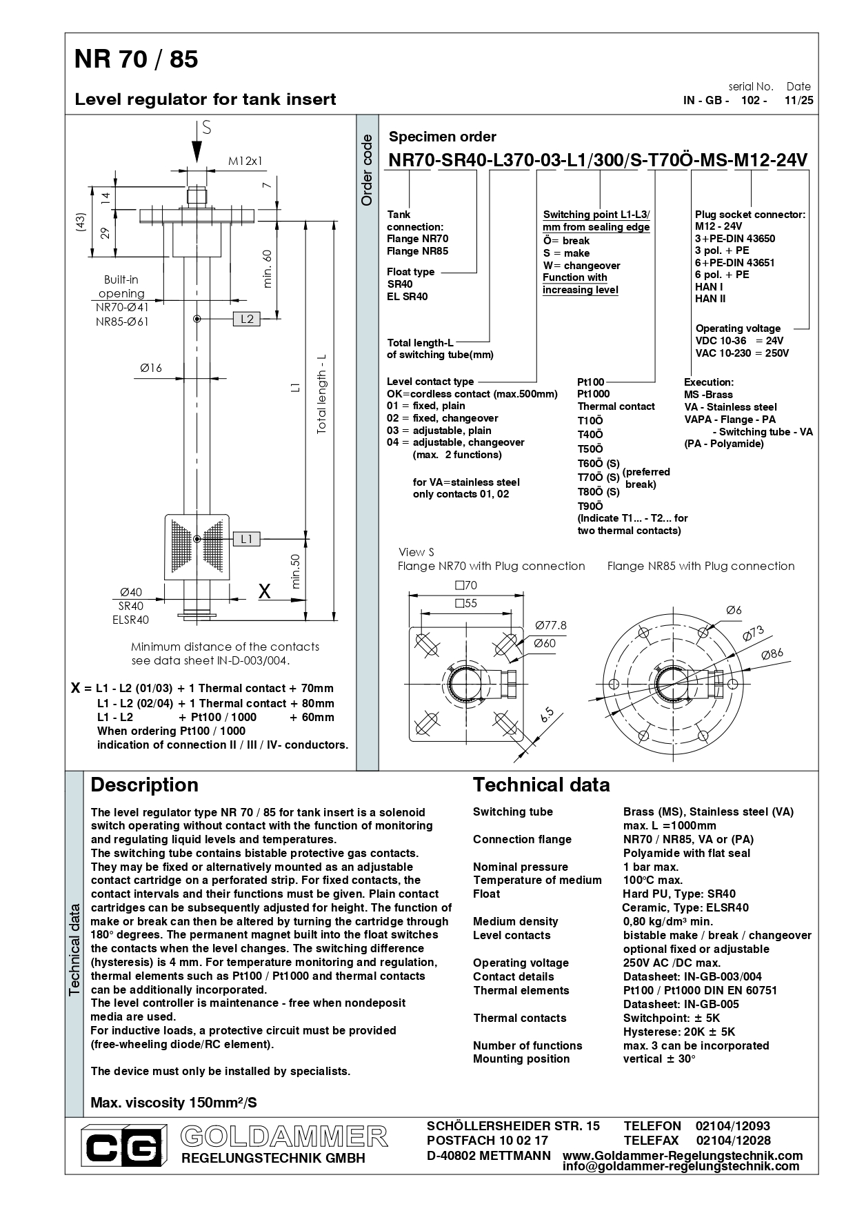
IN-GB-102

NR 70 / 85

Level regulator for tank insert

IN-GB-104

NR 30 / 50 / 70 / 85 – V

Level regulator for tank insert

IN-GB-105

NR 70

Level regulator for tank insert

IN-GB-106

NR 70 / 85 – V

Level regulator for tank insert

IN-GB-106A

NR 70 / 85 – V

Level regulator for tank insert

IN-GB-108

NR 85

Level regulator for tank insert

IN-GB-108B

NR 85 – 150°C max.

Level regulator for tank insert

IN-GB-111A

NR 95

Level regulator for tank insert

IN-GB-112

NR 1″-1 1/4″

Level regulator for tank insert

IN-GB-112A

NR 3/4″ – 150°C max.

Level regulator for tank insert

IN-GB-112B

NR 1″ – 1 1/4″ – 150°C max.

Level regulator for tank insert

IN-GB-112C

NR M30 x 1,5

Level regulator for tank insert

IN-GB-114

NR 1 1/2″

Level regulator for tank insert

IN-GB-115

NR 2″

Level regulator for tank insert

IN-GB-115C

NR 2″ – 150°C max.

Level regulator for tank insert

IN-GB-116

NR 1 / 120

Level regulator for tank insert

IN-GB-119

NR 6 / 32

Level regulator for tank insert

IN-GB-003

Datasheet contact 01 / 03 / OK

 

IN-GB-004

Datasheet contact 02 /04 

 

IN-GB-005

Datasheet Platinum Resistor Pt100 / Pt1000

 

IN-GB-006

Datasheet Thermal contact

 

IN-GB-100D

NR 1/2″-3/4″-M20-M24-Desina

Level regulator for tank insert

IN-GB-105B

NR 70 / 85 -Desina

Level regulator for tank insert

Bewerten Sie unser Google Unternehmensprofil

Ihre Meinung zählt! Wenn Sie mit unseren Produkten oder Dienstleistungen zufrieden waren, bitten wir Sie herzlich darum, eine Bewertung auf Google My Business zu hinterlassen.
Ihre Stimme kann anderen dabei helfen, uns zu entdecken und von Ihren positiven Erfahrungen zu profitieren.

Es ist kinderleicht – klicken Sie einfach auf den unten stehenden Button, um Ihre Bewertung abzugeben. Wir sind gespannt darauf, von Ihnen zu hören und danken Ihnen für Ihre wertvolle Unterstützung!

Jetzt Bewerten